atelier Hart Berteloot

Transformation de 103 logements, Caen

Réhabiliter l’immeuble Langevin, c’est faire du déjà-là un levier d’avenir : révéler le potentiel d’une structure oubliée, affirmer sa valeur patrimoniale et en faire le support d’un nouvel art d’habiter, plus libre, plus juste, ancré dans l’histoire et tourné vers demain.
Le projet de transformation de l’immeuble Langevin s’inscrit dans une démarche de réemploi et de valorisation d’une architecture oubliée et désaimée. En prenant le contre-pied de ce désintérêt, cette transformation est abordée comme l’opportunité de révéler le caractère patrimonial de la construction, pour en faire un témoin actif de l’histoire, porteur d’un renouveau optimiste et beau.
Comprendre le système constructif, sa logique et sa capacité porteuse permet d’imaginer les scénarii de transformation tout en intégrant dans le processus de conception l’idée du « faire avec » à toutes les échelles. Il s’agit d’imaginer le devenir du bâtiment, à partir de ce qu’il est, en révélant l’ingéniosité des architectes, ingénieurs, paysagistes, techniciens et ouvriers qui ont contribué à cette architecture.

Conçu à l’origine comme un bâtiment dans un parc, l’immeuble avait perdu au fil du temps sa relation privilégiée avec le paysage. Le projet cherche à renouer avec cette vocation, en recréant un lien fort entre architecture, nature et vie collective.
L’intervention réactive le site en ouvrant une traversée publique au rez-de-chaussée, transformant la barre en passage actif en relation avec le quartier. Les sols sont reconquis par un paysage vivant et partagé : potagers collectifs, jardin boisé, noues plantées, théâtre de verdure et clairières arborées dessinent un espace fertile, propice à la biodiversité et aux usages communs.

La façade, libérée de son isolation des années 1980, retrouve son rôle de filtre habité. Elle redevient visible grâce à une isolation par l’intérieur en blocs de chanvre local, matériau biosourcé qui conjugue performance thermique et respect de l’existant. Les loggias, les circulations extérieures, les menuiseries en bois et les stores colorés enrichissent l’architecture en lui apportant une profondeur d’usage tout en donnant à lire la transformation.

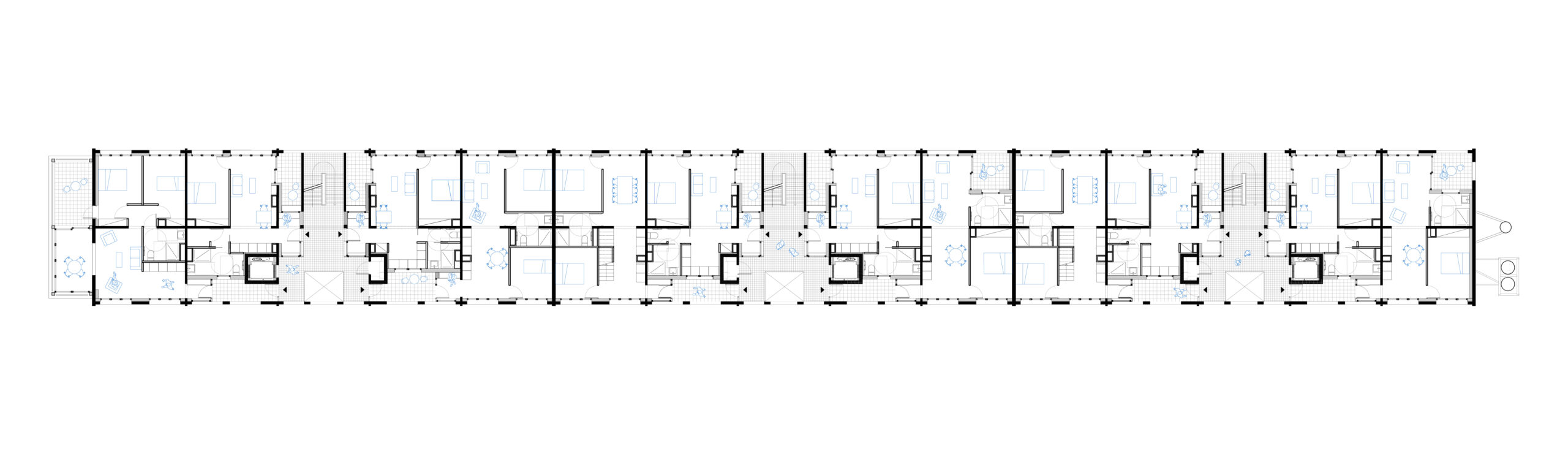
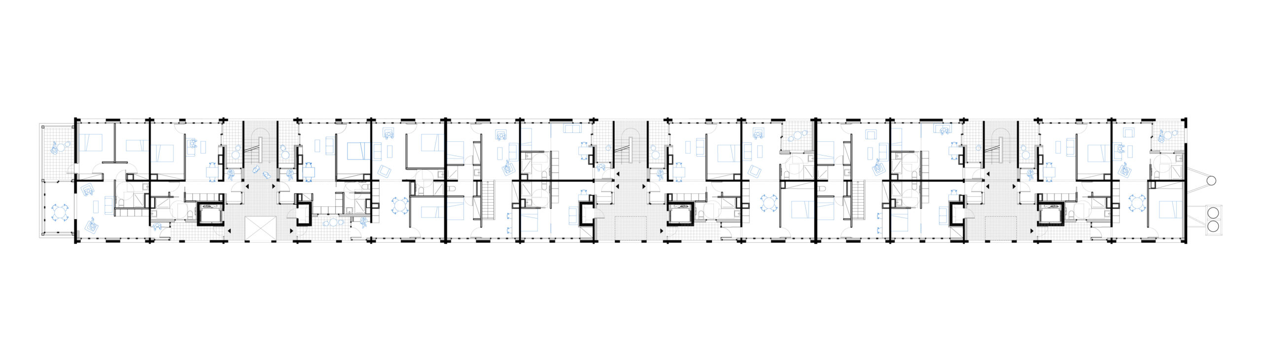
La réorganisation des logements accompagne cette transformation en profondeur : les typologies sont repensées pour offrir un maximum de logements traversants, favorisant la lumière naturelle, la ventilation et le confort d’usage. La diversité des nouvelles typologies permet une vraie mixité sociale et intergénérationnelle, où étudiants, familles et personnes âgées cohabitent autour d’espaces partagés, de toitures végétalisées et de lieux de rencontre informels.
Au-delà du logement, le projet ouvre le bâtiment sur le quartier. Le socle accueille une Maison des Générations, une laverie solidaire, des ateliers, des jardins collectifs : autant d’espaces actifs qui font du Langevin une plateforme de services, un lieu d’ancrage local, un support pour une nouvelle manière d’habiter, ensemble.

Plutôt que de démolir, le projet Langevin choisit de faire avec, en révélant les qualités de l’existant : structure conservée, façade restaurée, ventilation naturelle réemployée, matériaux durables et réversibles. La valeur patrimoniale de l’édifice existe : la construction n’est pas ordinaire, elle est le témoin d’une époque qui mérite d’être révélée et reconnue. La réflexion est optimiste et met l’habitant au centre de la transformation de l’habiter, pour rendre à l’édifice son échelle humaine.
Le projet repense les usages du socle, requalifie les espaces communs, diversifie les typologies de logements et rétablit la continuité entre le bâtiment et son environnement. Il propose un cadre de vie plus traversant, ouvert et vertueux, où l’architecture héritée devient le support d’un nouveau plaisir d’habiter, d’un renouveau durable, inclusif et porteur de lien social.

 

MAÎTRE D’OUVRAGE :
Caen la mer Habitat

MAÎTRE D’ŒUVRE :
HBAAT en association avec Sergison Bates architects

MAÎTRISE D’ŒUVRE ASSOCIÉE :
Richard Klein / Historien
Courtoisie urbaine / Programmation
Atelier Jean Chevalier / Paysagiste
EVP / BET Structure
Espace temps / BET techniques spéciales
Becquard / Économiste

PROGRAMME :
Restructuration de l’immeuble Langevin, de son offre de logements (103 logements), de son socle, et aménagements des espaces attenants en pieds d’immeuble.

SURFACE :
5 110 ² SHAB
6 441 m² SDO

BUDGET :
13 000 000 Euros/HT (2025)

RÉALISATION :
Concours 2025

 

Anni-Albers, 1926, Unexecuted, Wall-Hanging, gouache et crayon sur papier.

Transformation de 103 logements, Caen