atelier Hart Berteloot

Médiathèque d’Hazebrouck

La future médiathèque d’Hazebrouck s’inscrit comme un véritable pôle de centralité urbaine. Par sa forme architecturale singulière, sa position stratégique dans le tissu urbain, et les nombreux espaces publics qu’elle génère en périphérie, elle redessine un nouveau paysage pour la ville.

Connectée à un environnement riche en équipements, commerces, établissements scolaires et services, la médiathèque ne se contente pas de s’intégrer : elle crée son propre cadre urbain. Autour d’elle se déploient venelles, parvis, rues piétonnes et jardins, dessinant un vaste espace public végétalisé, comme si l’équipement était niché au cœur d’un grand jardin urbain.

Le bâtiment, organisé selon un plan en grand carré, s’offre à la promenade. On en fait le tour en traversant des espaces extérieurs ouverts et arborés. La nouvelle rue de Thérouanne, ainsi que la voie piétonne prolongeant l’espace intergénérationnel, conduisent à l’entrée principale, du bâtiment, protégée des intempéries. Au sud, l’élargissement de la rue Depoorter favorise les échanges entre les commerces de centre-ville et la médiathèque, notamment grâce à son café d’angle. À l’est, un jardin public complète l’ensemble, prolongeant naturellement les espaces de la médiathèque et apportant un îlot de fraîcheur apprécié des habitants.

Une médiathèque ouverte, accessible et vivante

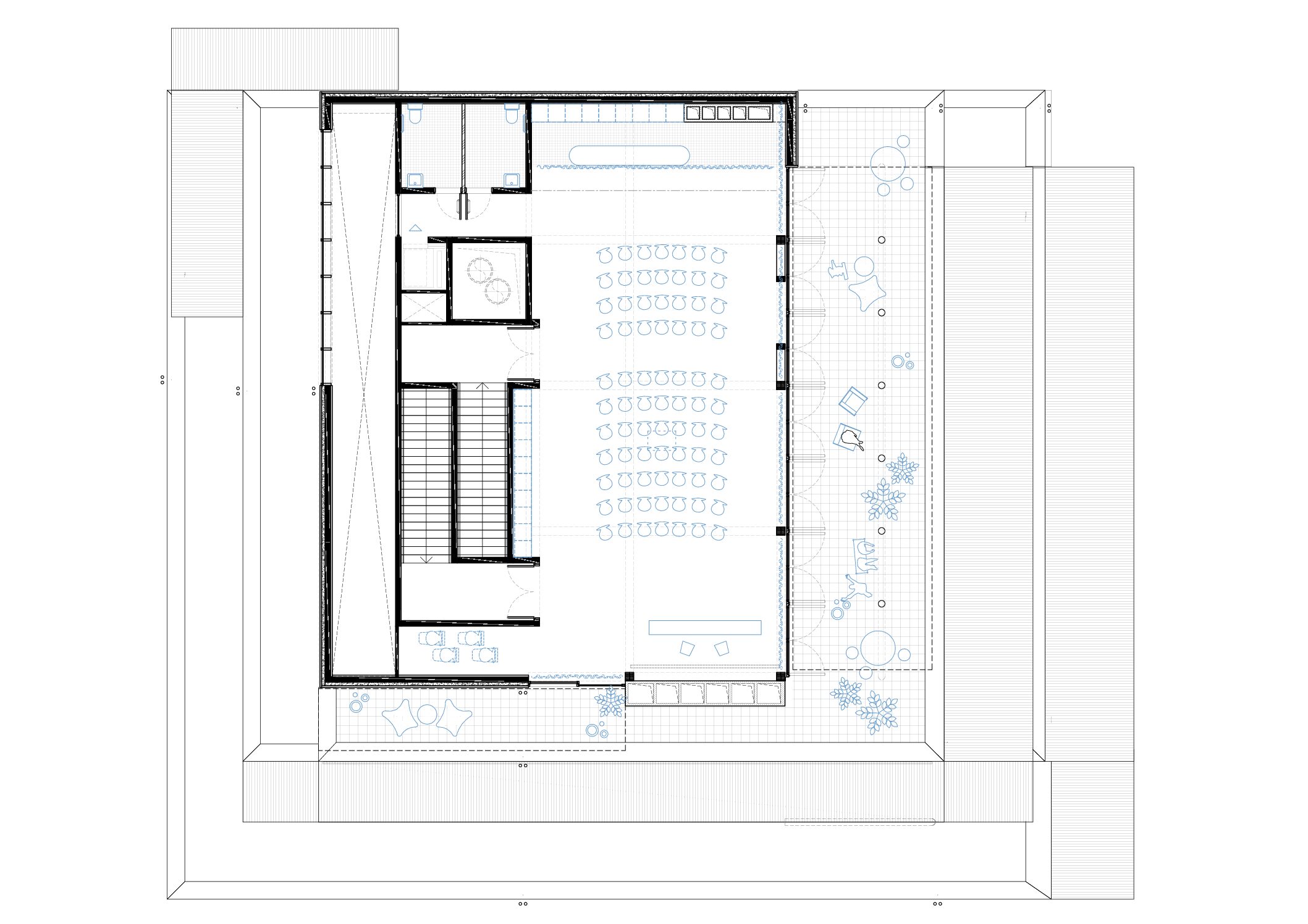
Pensée comme un lieu de vie et de rencontre, la médiathèque s’ouvre largement sur la ville et ses habitants. Son rez-de-chaussée – ou plutôt son « rez-de-jardin » – constitue l’espace le plus actif et vivant, en prise directe avec l’espace public. Accessible à tous tout au long de la journée, la médiathèque devient un lieu traversé, fréquenté, habité : on y passe, on s’y retrouve, on y échange, on y découvre les actualités culturelles de la ville. Le café, la presse, les écrans d’information, les gradins pour s’asseoir ou observer le paysage… tout est conçu pour accueillir les usages spontanés comme les rendez-vous culturels.

Ce lieu s’affirme comme un espace incontournable de la vie quotidienne, où les frontières entre intérieur et extérieur s’effacent pour laisser place à un lieu ouvert, fluide, propice à l’envie de culture sous toutes ses formes.

Des espaces de lecture ouverts sur la ville

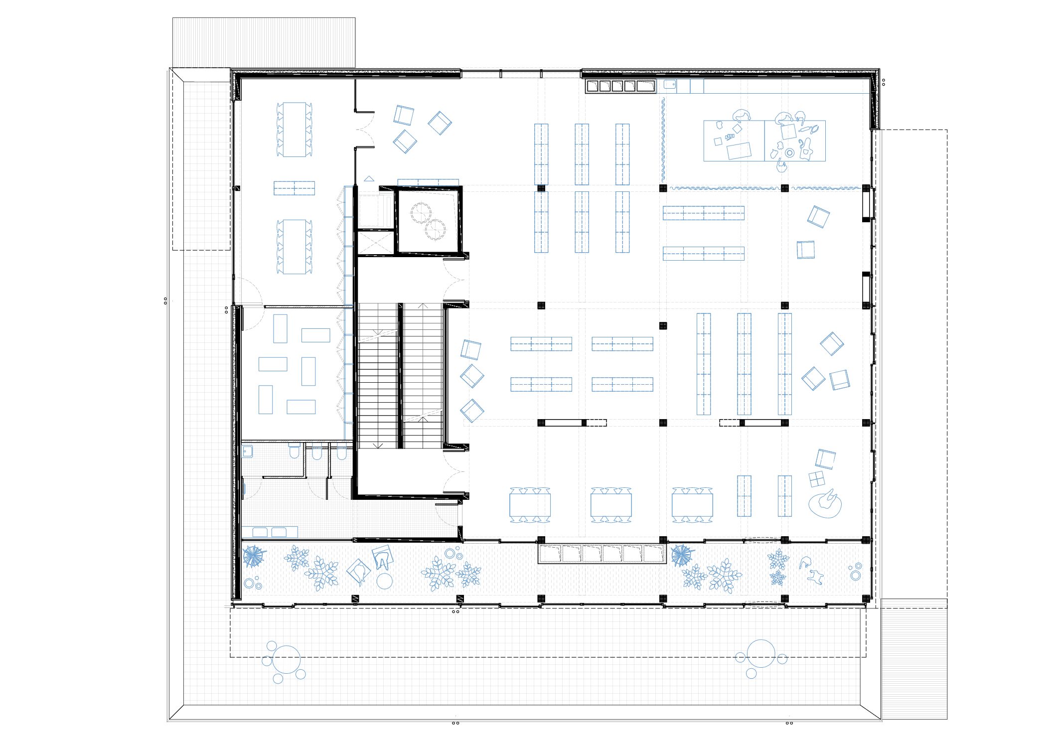
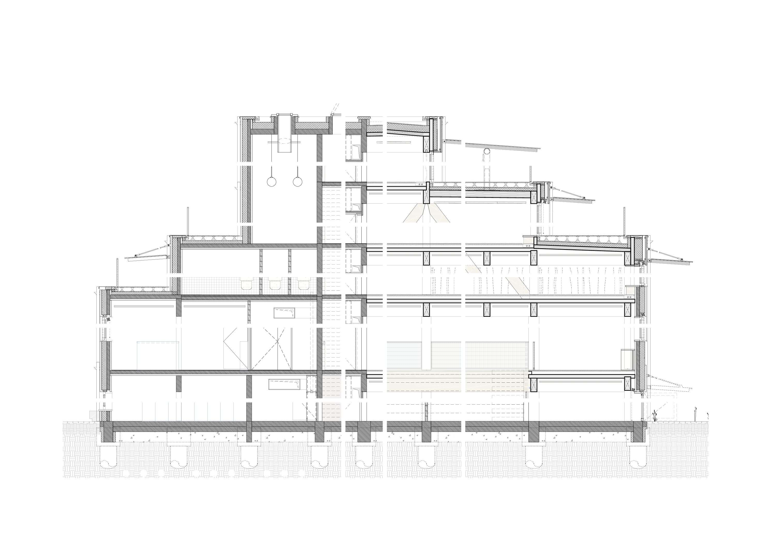
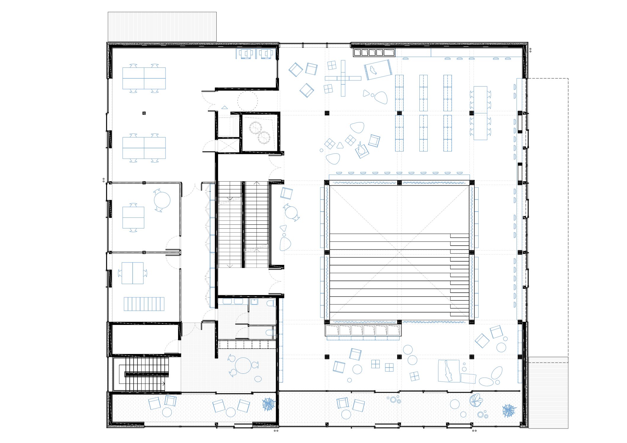
Les étages supérieurs abritent les espaces de lecture et thématiques, dans une progression vers le calme et la concentration. Chaque niveau est prolongé par des terrasses extérieures offrant des vues sur la ville et favorisant la connexion entre savoirs et paysages. Au dernier étage, une grande terrasse panoramique domine les toits, les monuments d’Hazebrouck et la campagne environnante.

Par cette articulation entre intérieur et extérieur, entre animation urbaine et sérénité des espaces, la médiathèque devient un véritable trait d’union entre la ville et ses habitants, un lieu de rayonnement culturel et de partage, à la fois ancré dans son territoire et ouvert sur tous les horizons.

MAÎTRE D’OUVRAGE :
Ville d’Hazebrouck

MAÎTRE D’ŒUVRE :
HBAAT en association avec ABLB

MAÎTRISE D’ŒUVRE ASSOCIÉE :
Ingé Bois / BET Structure
JM BECQUART / Économiste
Axoe / BET fluides
Symoe / BET environnement
Changement à vue / Scénographe

PROGRAMME :
Médiathèque de 50 000 livres, 8500 CD et DVD, un café bar, espace d’exposition, auditorium, et espace de coworking

CRITÈRES PARTICULIERS :
Bâtiment passif, mur en béton de d’argile, ventilation naturelle, dispositifs bio-climatique avec des jardins d’hivers et des protections solaires fixes sur certaines façades.

SURFACE :
2024m² SU

BUDGET :
6 500 000 Euros/HT (2025)

RÉALISATION :
Livraison 2026

Médiathèque d’Hazebrouck